TORONTO BUILDING PERMIT DRAWINGS
TORONTO PERMIT DRAWINGS
ARE YOU LOOKING FOR PROFESSIONALLY MADE BUILDING PERMIT DRAWINGS?
We specialize in preparing permit packages and permit applications with the Toronto. Our proficiency covers various aspects including construction additions, demolitions, renovations, and expansions, guaranteeing a smooth process for you. Our carefully Architectural and Structural plans not only complement the specific features of your property but also streamline the approval process with Toronto.
Some of the questions you may have that we can answer?
- When Do You Need a Building Permit in Toronto?
- Applying for a Building Permit: Step-by-Step Guide
- The Plan Review Process: Ensuring Compliance
- Common Pitfalls and Expert Tips for a Smooth Permit Process
At EngineeredPlans we specialize in preparing permits for the following types of projects:
If your project is one of these feel free to Call us today at (437) 808 7039
BUILDING PERMIT PROCESS FOR TORONTO
SECONDARY DWELLING PERMITS IN TORONTO
You may want to finish your basement for yourself or turn it into a legal secondary dwelling. We provide one worry free package that will help you get your secondary dwelling permit.
For any of these changes, you will need to start with a free home inspection in Toronto. This will give everyone a better idea of what the scope of the project will be and what type of drawings and services will be required.
We look for the following things when we visit.
- Existing natural and artificial lighting
- Means of egress and entrance to the secondary dwelling
- Locations of bedrooms, kitchen and washrooms.
Minimum areas as required by OBC. - New plumbing / HVAC / Mechanical
Find more details regarding Secondary Dwelling requirements here.
BASEMENT WALKOUT PERMIT IN TORONTO
Are you looking to add a side entrance to your basement? At EngineeredPlans, we understand the importance of having a separate basement entrance in your home. It can separate your living spaces and increase the value of your property, and provide another form of egress to outdoor access. Our goal is to simplify the often complex process of obtaining these permits in Toronto & the GTA and ensure it is a smooth process for our clients.
We prepare engineered permit drawings for the concrete retaining walls, Footings, and side entrance as required by the Toronto Building permit department.
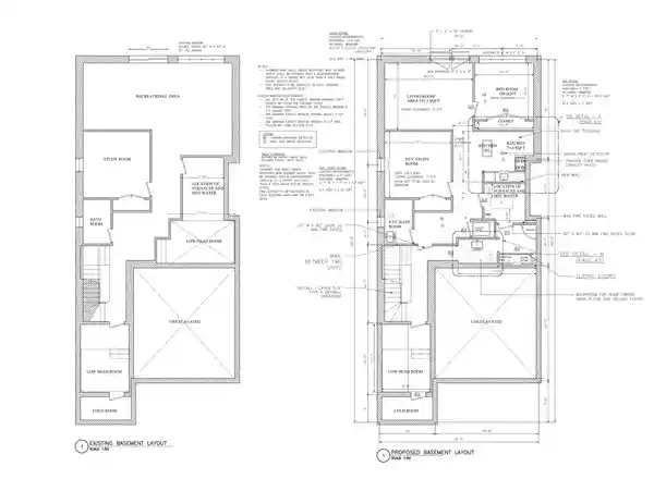
BASEMENT RENOVATION PERMIT
DECK DESIGNS TORONTO
We have prepared 100’s of deck designs and deck building permits around the GTA. We have previously done floating decks, 2nd story decks and Porch designs.
We offer variety of deck designs and permit plans for your projects. Many of the deck plans include features to make your deck unique including canopies, pergolas and planter boxes. Our plans include a framing plan, front & side elevations, footing layout, 3D rendering cover sheet, material list and a typical detail building guide.
CANOPY AND PERGOLA DESIGNS
Building any kind of deck or patio, with or without a gazebo or pergola requires a permit from the city of Toronto. You may have a design in mind or you may want some guidance. We offer a free home assessment and consultation. This will give everyone a better idea of what the scope of the project will be and what type of drawings and services will be required.
Once the initial home assessment is done and we have taken all the necessary measurements and 3d scans will prepare a set of drawings for a permit application. This set includes a site plan, floor plans (architectural and structural), elevations, and details as required by the scope of your project.
We offer the following services in the Residential space:
- Porches
- Pergolas
- Gazebos
HOME ADDITION DRAWINGS
We offer a package to design and get you project approved by the city of Toronto. The team here at EngineeredPlans is comprised of Architects and Engineers who will provide expert opinion and guidance on your unique project. We offer competitive pricing compared to our competitors due to our years of experience in the renovation industry and a skilled team. We have successfully completed 100’s of projects around the GTA.
We offer the following services in the Residential space:
- Deck drawings
- Second-floor permit
- First-floor additions permits
- Attic home additions
- Multi-story home additions permits
- Home additions permits
- Multi-story home additions
- Interior additions permits
- Kitchen extensions permits
- Garage conversions permits
- Underground additions permits
- Outdoor living space permits
- Rear extensions permits
- Laneway suites permits
- Multi-unit construction permits
- Exterior additions permits
INTERIOR RENOVATION
EngineeredPlans, located in Toronto, is glad to assist you in evaluating your renovation plans and construction permit drawings. We work with client and contractors to eliminate unnecessary delays. Our designs strictly adhere to municipal and city of Toronto requirements, ensuring compliance with Ontario Building Code 2020. We streamline the entire renovation process by meticulously preparing and submitting all essential drawings, drafts, and documentation to your city.
Every drawing from EngineeredPlans is meticulously crafted to meet building codes and align with municipal zoning regulations.
Our interior renovations permit drawings encompass a comprehensive package, including a site plan, floor plans, elevations, and all project-specific details.
With over a decade of experience, we bring expertise and proficiency to every project.
We prioritize adherence to health and safety standards in all our undertakings.
Our drawings bear the stamp of approval from an Engineer and/or a BCIN professional, tailored to meet the specific requirements of each project.
Recent Work

RICHMOND HILL BASEMENT RENOVATION
We provided engineering and design services for a basement walkout.

RICHMOND HILL – SECONDARY DWELLING RESIDENCE
We provided engineering and design services for a basement walkout.

VAUGHAN SECONDARY DWELLING
We provided engineering and design services for a basement walkout.

CROSSGATE – SECONDARY DWELLING RESIDENCE
Scope of Work: Permit Drawings for Secondary Dwelling Basement Apartment
Client: Ahmed
Location: Ottawa, ON

WILLOWMERE WAY – SECONDARY DWELLING RESIDENCE
Scope of Work: Permit Drawings for Secondary Dwelling Basement Apartment
Client: Harpreet
Location: Willowmere Way, Gloucester

BASEMENT RENTAL UNIT CONVERSION - MISSISSAUGA, ON
We provided engineering and design services to renovate an existing unfinished basement unit.
Building Permit Drawings Toronto

BUILDING PERMIT DRAWINGS TORONTO
We specializes in preparing all the necessary drawings and drafts in order to help you obtain a building permit for your project. Whether you’re looking to build, demolish, renovate or build additions, we’ll create you a design that will fit the specifics of your lot and get quick municipal approvals.

LEADING BUILDING PERMIT EXPERTS
We’ll help you create comfortable interiors and elegant exteriors that fit your needs. In order to minimize delays, our specialists will coordinate and prepare a full list of building permit drawings, including mechanical, electrical, architectural and structural drawings.

HELPING GET PERMITS FOR TORONTO
We have proudly helped hundreds customers around the GTA and Southern Ontario get their building permits approved.
COMPREHENSIVE GUIDELINE ON GETTING YOUR BUILDING PERMIT IN TORONTO
Our Mechanical Engineering services provide innovative solutions for your product design, development, and manufacturing needs. Our team of experts has extensive experience in creating designs that meet the highest standards of quality and safety.
STEP 1: REVIEW YOUR PROPERTIES ZONING TO DETERMINE WHAT IS POSSIBLE
There is an abundance of information available online regarding the zoning bylaws applicable to properties in the City of Toronto. A crucial tool to be aware of is the Toronto Interactive Zoning Bylaw Map, which allows you to identify your property’s zoning and understand the specific regulations it is subject to. If navigating the map seems overwhelming, any reputable General Contractor or permit designer/architect should be able to provide you with information on what is feasible, what is not, and potential options for your property (further details on the latter are discussed below).
If you determine your property is or might-be able to complete the work you want to complete, then you can proceed to step 2.
STEP 2: DESIGNER SELECTION AND PRELIMINARY COST ESTIMATES
Once you have a preliminary understanding of the feasible options for your property, it’s time to solicit fee proposals from permit designers and/or architects. These proposals will provide pricing details for the creation of necessary drawings that must undergo City of Toronto review for the issuance of your building permit. To assist you in making an informed decision, we’ve compiled a comprehensive guide outlining key considerations when selecting a permit designer or architect for your residential construction permit.
Simultaneously, at this stage, it is advisable to engage with a General Contractor experienced in similar residential construction projects. They can assess your proposed project and furnish a preliminary cost estimate. This step ensures that you can assess the financial feasibility of the project before finalizing your choice of designer or architect. Notably, when working with BVM Contracting, this service is offered at no additional cost and is a standard part of our procedure for anyone considering collaboration with us.
Pro Tip: Emphasize the importance of having your permit designer or architect provide a detailed breakdown of permit fees. This information will enable you to budget effectively for the overall cost of obtaining your permit.
STEP 3: PRELIMINARY PLANS AND ZONING REVIEW
Once you’ve confirmed the financial viability of your intended renovation or home building project and have committed to a permit designer or architect, the next phase involves actively developing plans for your proposed work.
The specific process may vary based on your chosen project, but the ultimate objective remains consistent – to compile a comprehensive application for your project, ready for the City of Toronto Building Department’s assessment for compliance with local zoning by-laws and exceptions. It’s important to note that fees for the zoning review (25%) are applicable, but these contribute toward the total permit cost, with no additional charge for this specific review.
Emphasizing the significance of submitting your preliminary set of drawings promptly for zoning review is crucial. This step is instrumental in determining your subsequent actions (as outlined below), and timely submission is vital for obtaining the necessary feedback. The duration of this phase typically ranges from 2 to 4 months, contingent on factors such as effective collaboration with your designer, responsiveness to requested plan changes, the need for an updated property survey to support the application, and the speed at which the City provides feedback on your proposed plans.
STEP 4A: RECEIPT OF ZONING CERTIFICATE AND PERMIT SUBMISSION DRAWINGS
If your zoning application for your proposed project aligns with all local Toronto zoning by-laws, you will receive a Zoning Applicable Law Certificate, confirming the eligibility of your application for submission of a building permit.
Upon obtaining the certificate, your permit designer or architect will proceed to incorporate the necessary building code information pertinent to your proposed project. This prepares the plans for a subsequent review by the City, focusing on their building code examination.
In addition to the work carried out by the permit designer or architect, your project will likely undergo scrutiny by a structural engineer to undertake the engineering design required for the proposed endeavor.
If you are constructing a new home, ancillary structure, or home addition, an HVAC permit will be necessary. This entails engaging an HVAC designer or engineer to conduct the essential heat loss calculations and HVAC design. It’s worth noting that the HVAC permit is distinct from the building permit, and while it’s not obligatory to submit both simultaneously, it is common practice to do so for comprehensive project information. Additionally, the permit designer or architect will initiate a separate application for a plumbing permit.
The creation of Ontario Building Code (OBC) overlay drawings, HVAC design/permitting, and structural design occurs post-approval of the Toronto zoning review and certificate acquisition. Initiating work before this stage poses the risk of having to redo structural and HVAC designs, incurring additional costs.
Compiling the “Building Permit Drawings” typically spans 1 month, with an additional month for the permit issuance once submitted to the City. At this juncture, you will also be required to settle the remaining permit fees for your project. The City of Toronto transparently outlines its building permit fees on their website, emphasizing that non-flat fees are calculated per square meter. It’s crucial to be aware of this, as apparent low numbers can be misleading.
STEP 4B: MINOR VARIANCES AND COMMITTEE OF ADJUSTMENT IN TORONTO
If your zoning application has been flagged for minor variances to the local zoning bylaws of your neighborhood, you’ll encounter two options:
- Make the necessary changes to ensure your project complies.
- Submit an application to the Committee of Adjustment to seek approval for the minor variances.
It’s essential to note that your permit designer or architect can assist in assessing potential risks associated with the Committee of Adjustment process, gauging the likelihood of obtaining approval. While there is always a risk of rejection, in cases of uncertainty, consulting a private planning consultant is an option, and we can provide referrals if needed.
If you choose to go to the Committee of Adjustment, anticipate the following:
- Additional costs for submitting the application and being represented by your permit designer, architect, or planning consultant (recommended for 99% of applications).
- Additional waiting time for a Committee of Adjustment hearing, which can range from 2 to 6 months.
- Community involvement, as neighbors can submit letters of support or opposition, potentially expressing their views during the hearing. Securing neighbor support is crucial, especially for more complex applications.
Once your Committee of Adjustment Hearing is scheduled, conducted, and approval is obtained, you can return to step 4A to complete your permit application. In case of rejection, proceed to step 5.
It’s worth noting that the Committee of Adjustment may grant partial approval with conditions, requiring changes or concessions to your plans to conform to specific minor variances. While this allows you to move forward to the permit submission phase, adjustments will be needed. If the Committee of Adjustment presents this option, it’s advisable to consider it, as proceeding to step 5 involves additional costs and more time.
Frequently Asked Questions
Please reach us at if you cannot find an answer to your question.
HOW LONG DOES A THE PERMIT PROCESS TAKE?
HOW LONG DOES IT TAKE TO OBTAIN A BUILDING PERMIT IN TORONTO?
The timeline for obtaining a building permit depends on the complexity of your project and the workload of the city’s building department. Simple projects may be approved in a few weeks, while more complex projects can take several months.
BUT WHAT ABOUT THE FASTRACK SERVICE FROM THE CITY OF TORONTO THAT LETS YOU GET A PERMIT WITHIN 5 DAYS?
The FASTRACK building Building permit service aims to issue permits for specific home renovation projects within a 5-business-day timeframe. However, it’s important to note that FASTRACK applications are designed for minor interior renovations and projects without any external work. For more extensive projects like additions, garages, or new builds, the processing time is typically longer, depending on the project’s individual scope.
It’s often overlooked that the city of Toronto involves different departments in reviewing various aspects of an application. Different departments handle HVAC, life safety, and structural drawings. If your project involves external work, such as building an addition or a shed, the city of Toronto will also review it to ensure compliance with zoning by-laws. Obtaining a Building permit entails more than just submitting a few documents, which is why the process generally extends beyond the 5-day period.
WHAT IF I MOVE INTO A HOME THAT WAS ALTERED WITHOUT A BUILDING PERMIT IN TORONTO?
WHAT IS THE PROCESS OF OBTAINING A BUILDING PERMIT?
CAN YOU SELL A HOUSE WITH UNPERMITTED WORK IN TORONTO?
HOW BIG OF A STRUCTURE CAN I BUILD WITHOUT A BUILDING PERMIT IN ONTARIO?
The rules and regulations regarding building without a Building permit vary by municipality in Ontario, and it’s important to check with your local municipal building department for specific guidelines.
Constructing a backyard shed, garden shed, or storage shed does not necessitate a building permit if it is smaller than 160 square feet (or 15 square meters). However, any shed exceeding 160 square feet does require a building permit. It’s important to note that building permits are obligatory for accessory structures with plumbing, irrespective of their size. For additional details, you can refer to the Toronto website.